LARGE CREATIVE SPACE
PRICE GUIDE - $1.2m to $1.3m
Ray White Commercial (SC), in conjunction with Ray White Elevate Group, is pleased to present to market a premium large blank canvas opportunity with existing creative fit-out, offering wide-ranging potential for investors and owner-occupiers. This property will be offered for sale via Auction.
This exceptional asset occupies the historic "Starkey's Ginger Beer Factory" building - a heritage warehouse conversion celebrated for its architectural character, enhanced natural light, high ceilings, and an established creative fit-out. The building's thoughtful preservation of timber, exposed brick, and handcrafted detailing creates an inspiring environment adaptable for diverse uses.
Situated in Stanmore, just minutes from Sydney's CBD, the property is nestled within the prestigious Bridge Road Studios precinct-home to one of the city's most sought-after creative workspace conversions. It benefits from outstanding connectivity, including close proximity to Stanmore Train Station and swift access to vibrant precincts like Newtown, Leichhardt, Annandale, and Glebe.
Additional highlights of the asset include:
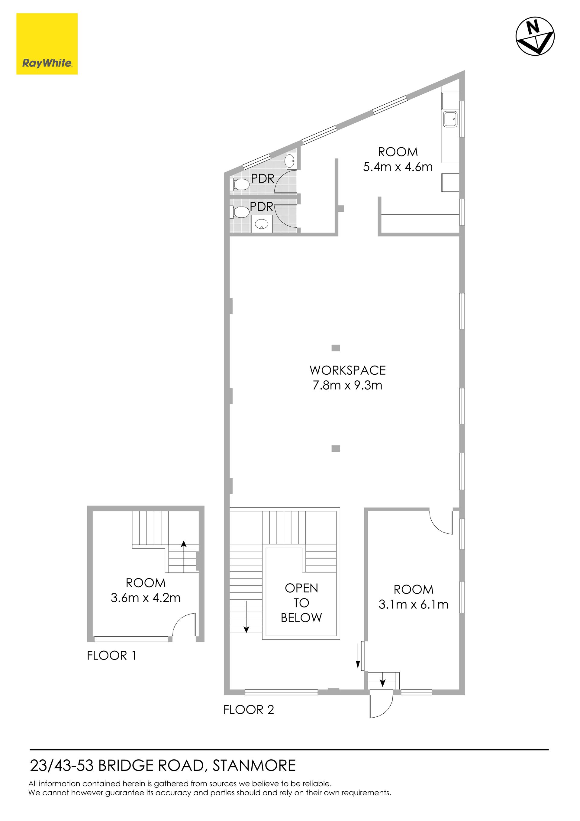
• Floor area: 152sqm*
• Large open space with existing creative fit-out
• Exclusive lobby access
• 1 x parking space on title
• Corner location of the historic "Starkey's Ginger Beer Factory" building
• High timber-beamed ceilings
• Zoned E4 General Industrial with wide-range of permissible use
• Excellent connectivity - close to train network and Parramatta Road
23/43-53 Bridge Road, Stanmore, is offered for sale.
For further information, please contact the exclusive selling agents below.
*Approximately
Ray White Commercial (SC), in conjunction with Ray White Elevate Group, is pleased to present to market a premium large blank canvas opportunity with existing creative fit-out, offering wide-ranging potential for investors and owner-occupiers. This property will be offered for sale via Auction.
This exceptional asset occupies the historic "Starkey's Ginger Beer Factory" building - a heritage warehouse conversion celebrated for its architectural character, enhanced natural light, high ceilings, and an established creative fit-out. The building's thoughtful preservation of timber, exposed brick, and handcrafted detailing creates an inspiring environment adaptable for diverse uses.
Situated in Stanmore, just minutes from Sydney's CBD, the property is nestled within the prestigious Bridge Road Studios precinct-home to one of the city's most sought-after creative workspace conversions. It benefits from outstanding connectivity, including close proximity to Stanmore Train Station and swift access to vibrant precincts like Newtown, Leichhardt, Annandale, and Glebe.
Additional highlights of the asset include:
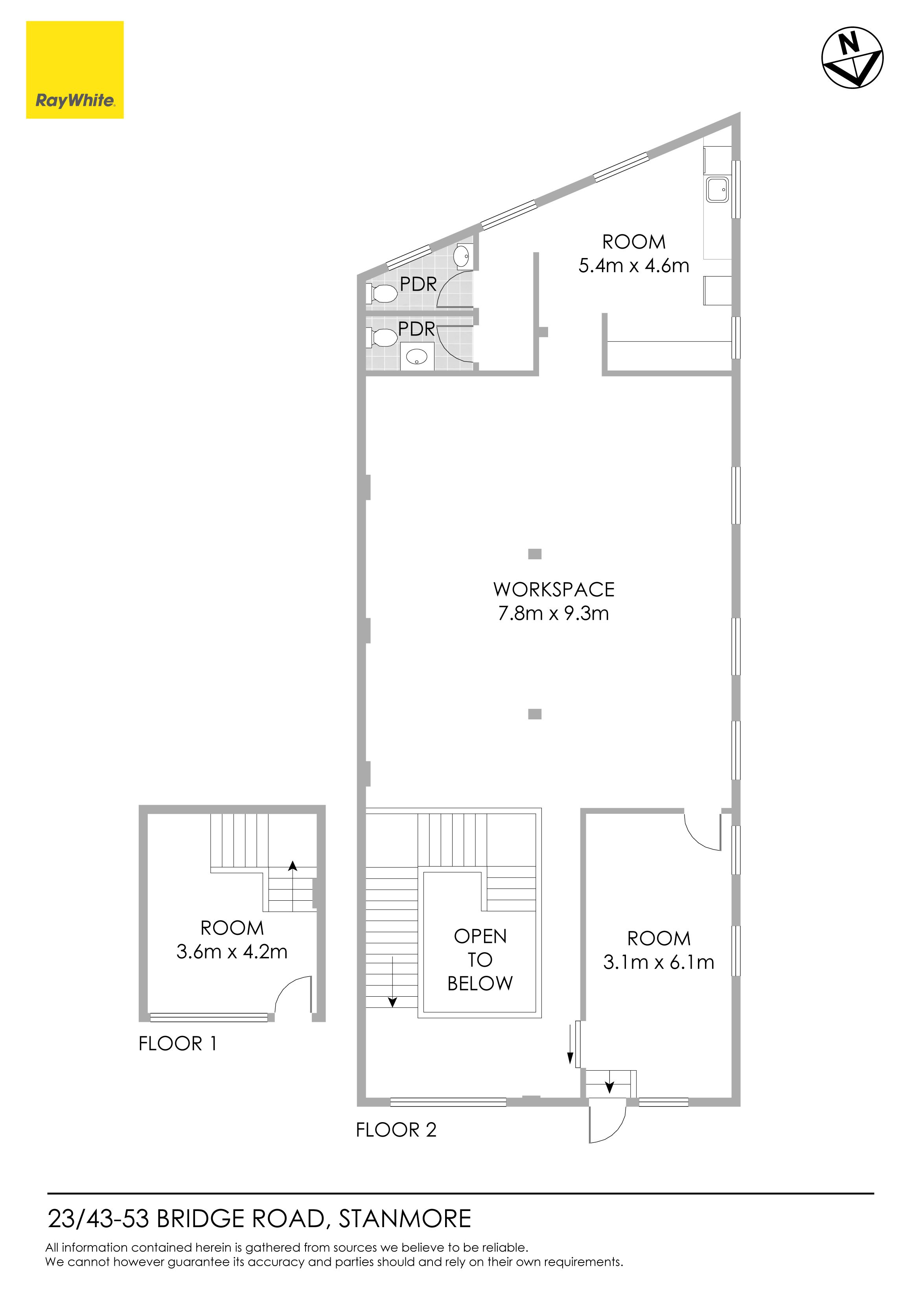
• Floor area: 152sqm*
• Large open space with existing creative fit-out
• Exclusive lobby access
• 1 x parking space on title
• Corner location of the historic "Starkey's Ginger Beer Factory" building
• High timber-beamed ceilings
• Zoned E4 General Industrial with wide-range of permissible use
• Excellent connectivity - close to train network and Parramatta Road
23/43-53 Bridge Road, Stanmore, is offered for sale.
For further information, please contact the exclusive selling agents below.
*Approximately