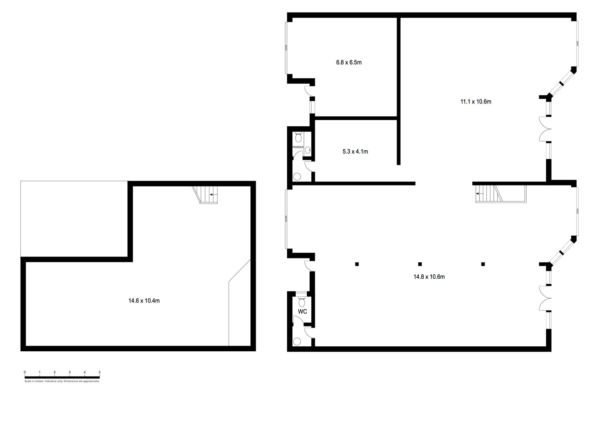
Versatile Commercial Tenancy 364 m
* Shop area fully air-conditioned - 324 m approx. ground level
* Storage ground level 45 m
* Mezzanine storage approx. 130 m
* T-bar ceilings with recessed lighting
* Floor coverings - carpet
* Kitchenette, 2 x W.C
* All uses considered
* Current tenant Little Rompers is relocating to larger premises.
* Available to Occupy early October 2017
View by Appointment 7 Days!
THIS PROPERTY HAS BEEN LEASED BY RAY WHITE COMMERCIAL (NT)
For more information, or to arrange an inspection, call Nick Syrimi today at Ray White Commercial (NT)
Visit our website rwcnt.com.au to view all our property listings!
* Storage ground level 45 m
* Mezzanine storage approx. 130 m
* T-bar ceilings with recessed lighting
* Floor coverings - carpet
* Kitchenette, 2 x W.C
* All uses considered
* Current tenant Little Rompers is relocating to larger premises.
* Available to Occupy early October 2017
View by Appointment 7 Days!
THIS PROPERTY HAS BEEN LEASED BY RAY WHITE COMMERCIAL (NT)
For more information, or to arrange an inspection, call Nick Syrimi today at Ray White Commercial (NT)
Visit our website rwcnt.com.au to view all our property listings!