Property main details

Commercial

  • Leased
  • Industrial/Warehouse

Specifications

  • Property Type
    Industrial/Warehouse
  • Building
    151 m2
  • Land
    151 m2

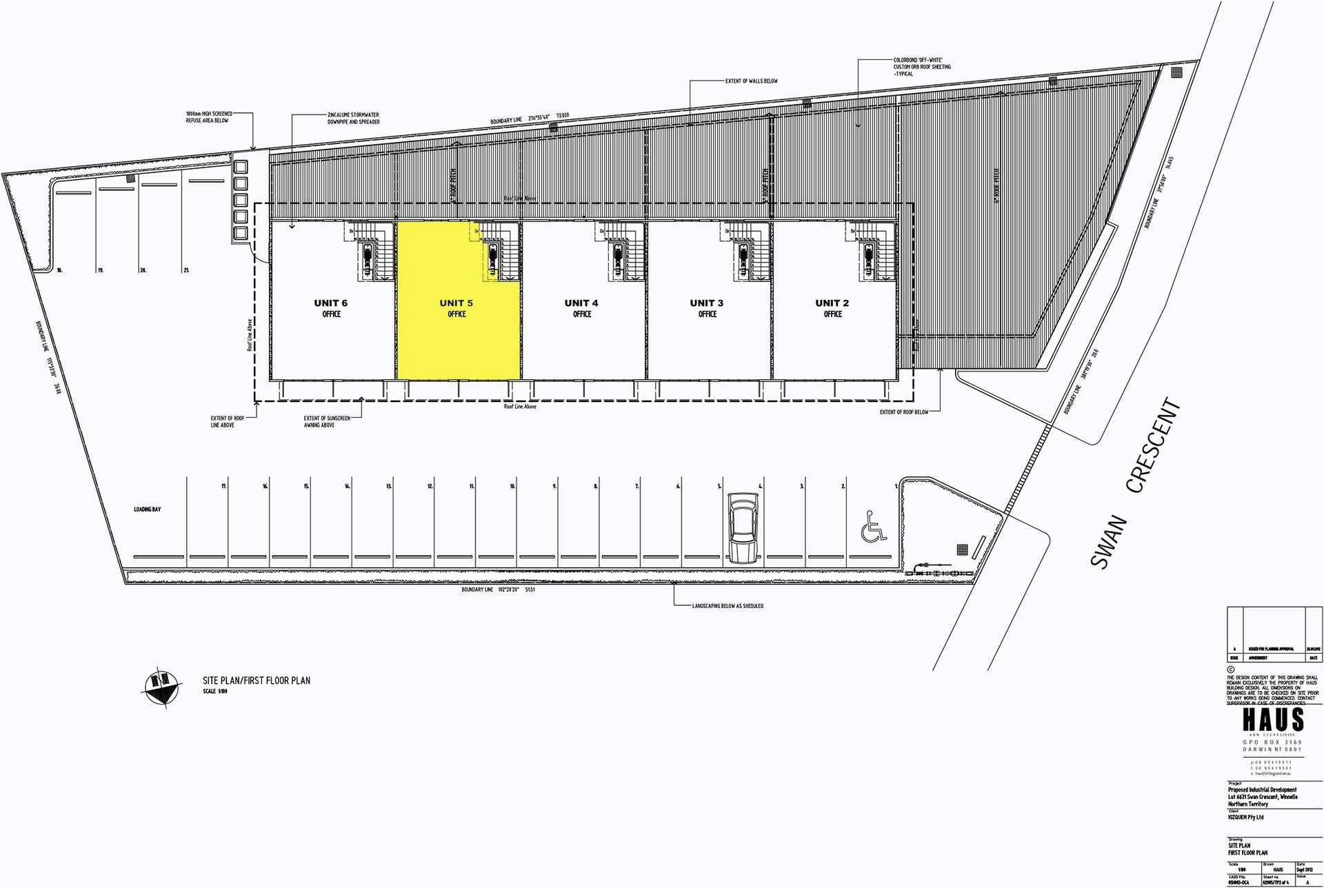
Warehouse with 68m² Office

Commercial warehouse unit with ground level storage area and totally separate office on the mezzanine above.

- Office area 67.5m²
- Storage area 84m²
- Roller door for access to storage area
- Kitchenette & W.C
- Allocated car parking
- Tilt slab construction
- Wide drive way access and plenty of car parking

LEASED by Nick Syrimi @ Ray White Commercial (NT)

Visit our website rwcnt.com.au to view all our property listings

Get in touch

We'd love to hear from you

If you're interested in looking at properties around the area, or want the latest information on the market in your neighbourhood, we'd love to hear from you. 

5/3 Swan Crescent Winnellie 0820, Northern Territory
Back to top