Property main details

Commercial

  • Sold
  • Retail

Specifications

  • Property Type
    Retail
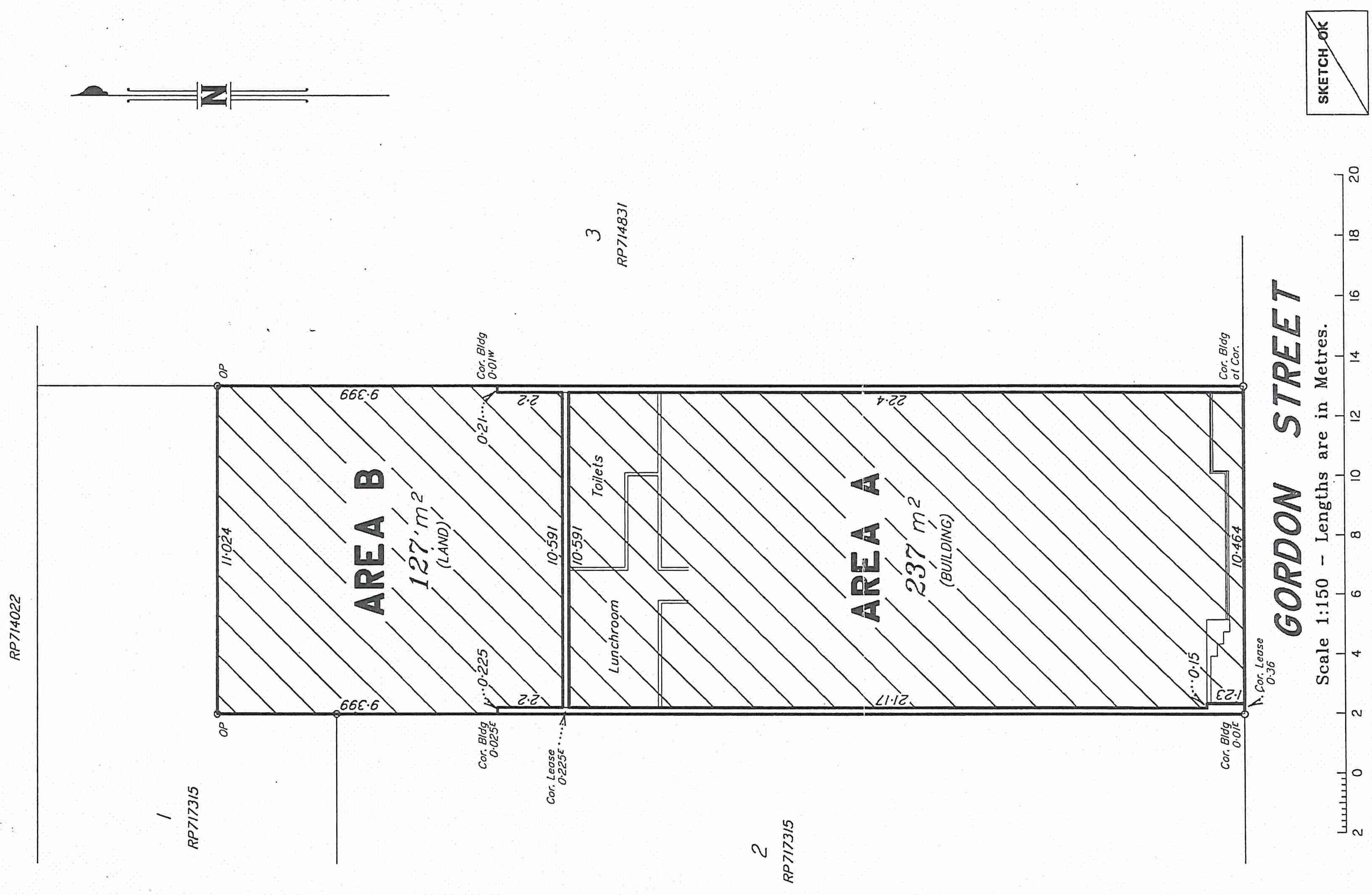
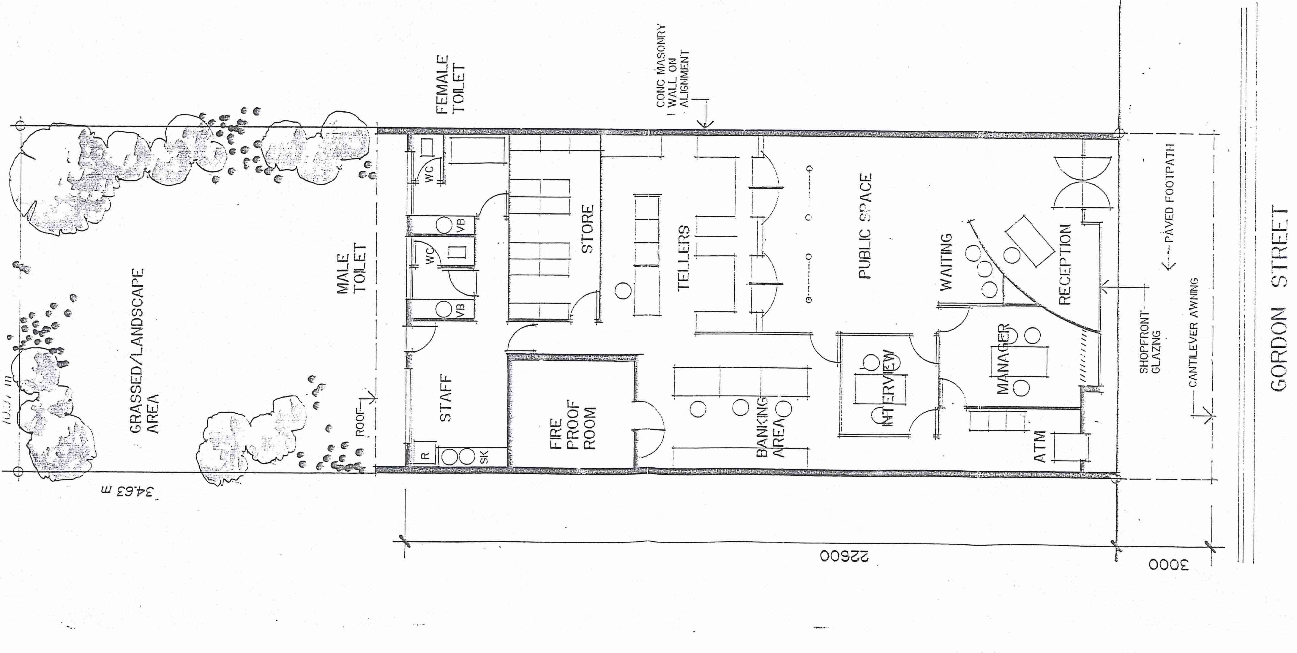
  • Building
    237 m2

Banking Chambers Gordonvale FNQ

* First time offered for sale
* National Australia Bank chambers at Gordonvale
* Tenant has occupied the site since the 1920's
* 237 m2 building
* New lease commences April 2017
* $500,000

Contact: Exclusive agent Scott Green - Ray White Commercial Cairns for more information

Get in touch

We'd love to hear from you

If you're interested in looking at properties around the area, or want the latest information on the market in your neighbourhood, we'd love to hear from you. 

98 Gordon Street Cairns 4870, Queensland
Back to top