High Profile Fully Refurbished Office/Retail Suites For Lease - Register Your Interest Today
This well exposed corner position offers a variety of areas available for lease.
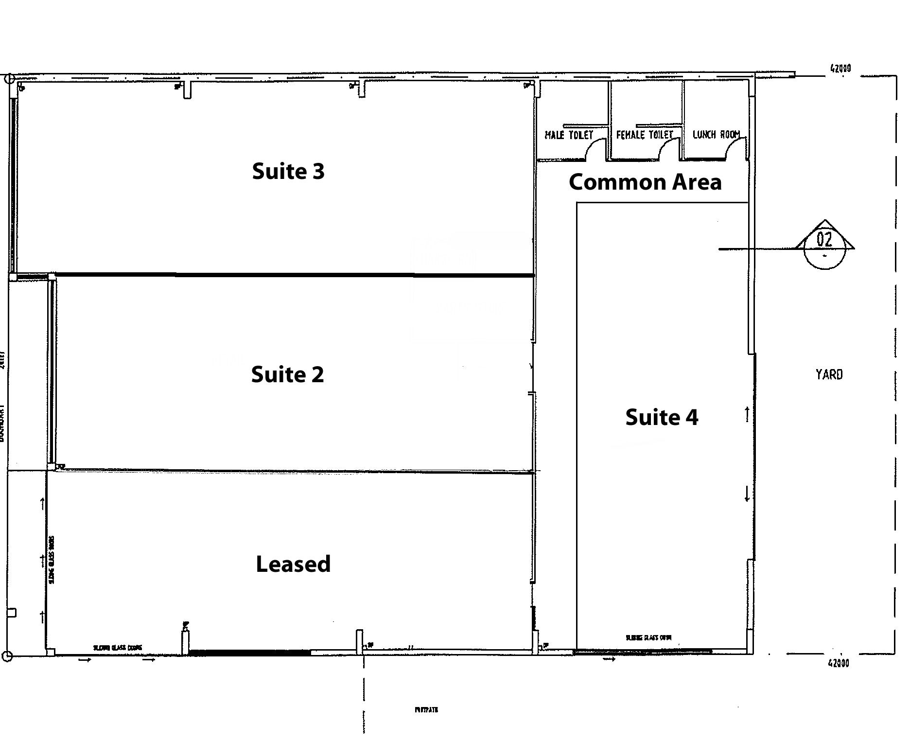
The building is being transformed completely and have tenancies ranging from 100m2 with the ability to amalgamate to 200m2 or 290m2 (approx). There are currently 3 available suites remaining with the corner position currently under option.
The tenancy will have an open plan white shell fit out with new air conditioning, glazing and freshly painted throughout.
Situated within close proximity to the proposed new Super Stadium, Townsville V8's and Honeycombes Railway Redevelopment that is currently hosting a cinema and a number of food and retail outlets.
This precinct is highly sought after and recommend you register your interest today to avoid disappointment.
Rental: From $29,000 pa gross plus GST
Suite 2: 100m2
Suite 3: 100m2
Suite 4: 90m2 approx
Contact exclusive marketing agent Ray White Commercial to arrange an inspection or further information.
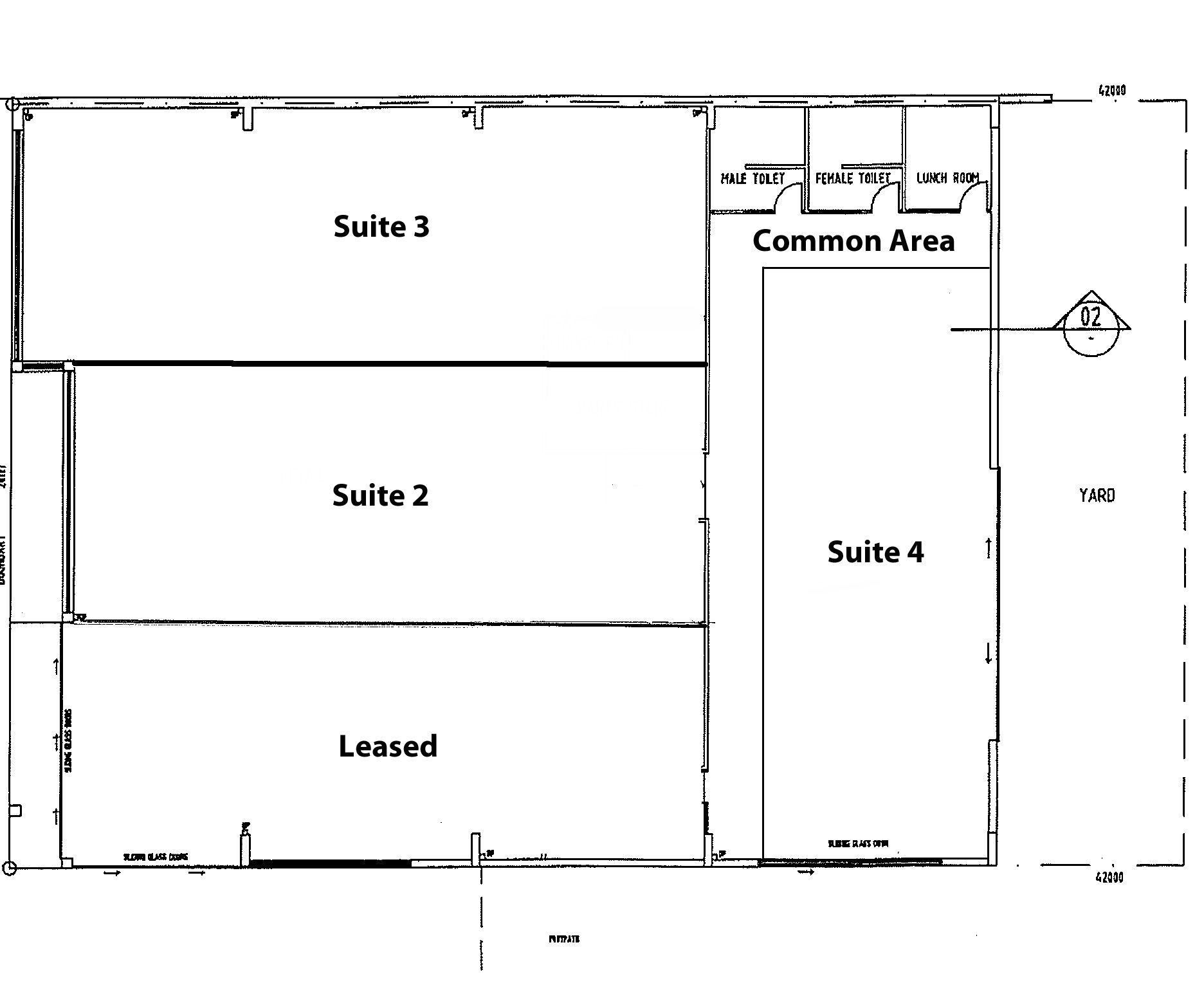
The building is being transformed completely and have tenancies ranging from 100m2 with the ability to amalgamate to 200m2 or 290m2 (approx). There are currently 3 available suites remaining with the corner position currently under option.
The tenancy will have an open plan white shell fit out with new air conditioning, glazing and freshly painted throughout.
Situated within close proximity to the proposed new Super Stadium, Townsville V8's and Honeycombes Railway Redevelopment that is currently hosting a cinema and a number of food and retail outlets.
This precinct is highly sought after and recommend you register your interest today to avoid disappointment.
Rental: From $29,000 pa gross plus GST
Suite 2: 100m2
Suite 3: 100m2
Suite 4: 90m2 approx
Contact exclusive marketing agent Ray White Commercial to arrange an inspection or further information.