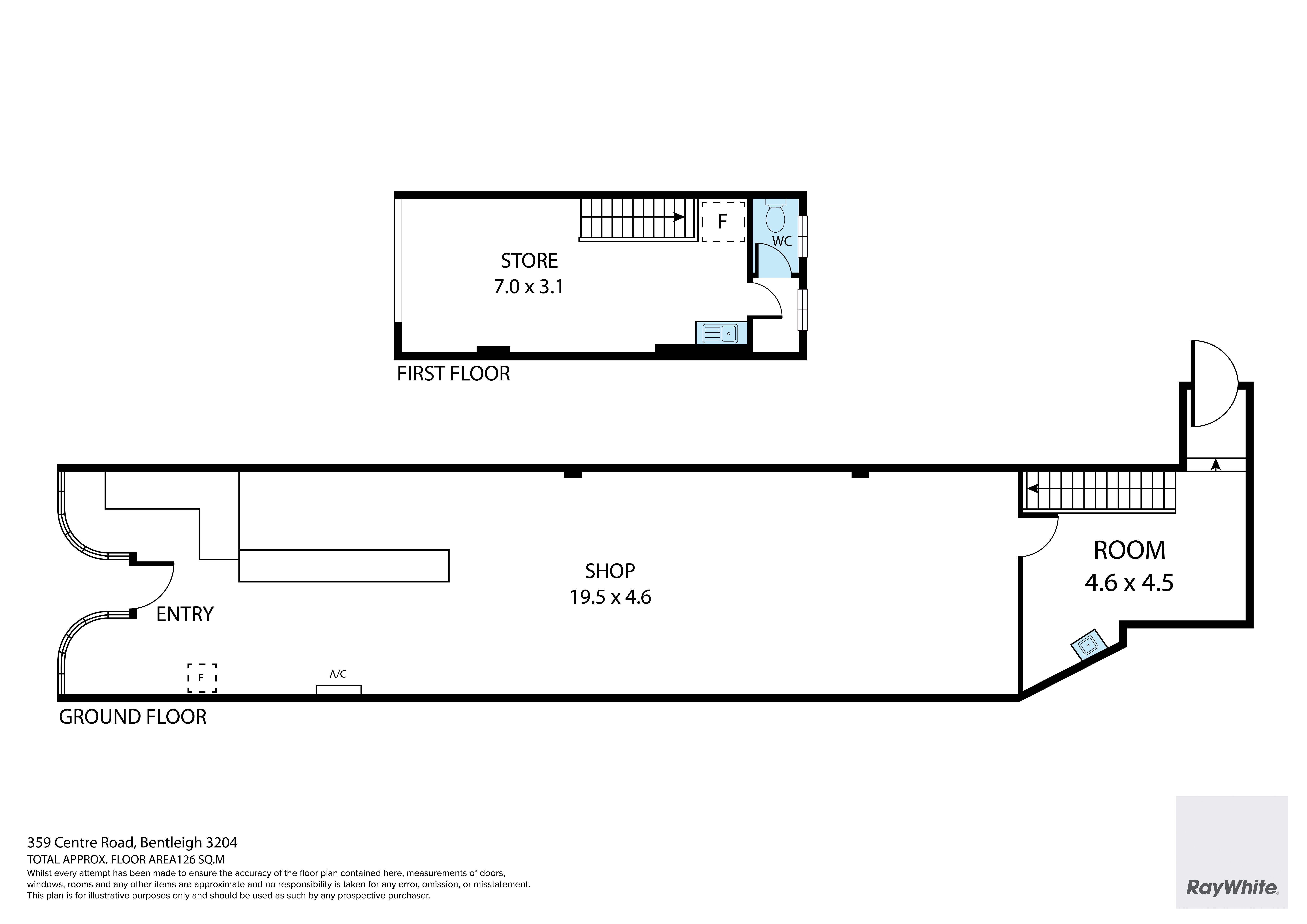
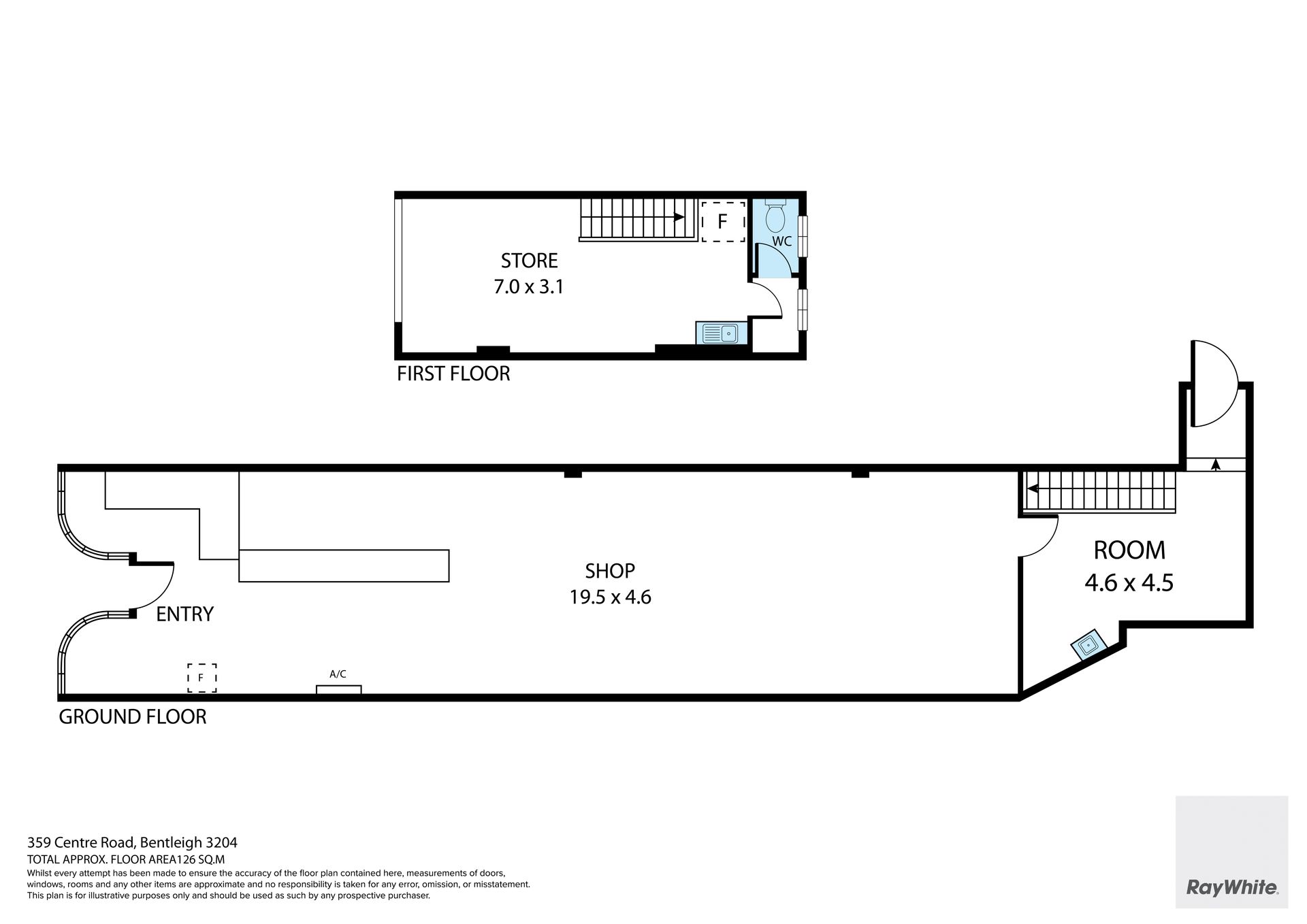
PRIME POSITION ON CENTRE ROAD
Ray White Commercial (Oakleigh) is pleased to offer a prime retail premises on Centre Road Bentleigh, located near the corner of Nicholson St and the Bentleigh Train Station. Operating as newsagency for many years, it is now time for its next chapter.
• Total building area | 131m2*
• Comprising ground floor area | 110m2*
• First floor area | 21m2*
• High ceilings and open plan layout
• One (1) car space on rear
• Suitable for many uses (STCA)
Ryan Amler | 0401 971 622
George Kelepouris | 0425 798 677
*All areas and figures approx only. All boundaries are indicative only. All precaution has been taken to establish the accuracy of all information but does not constitute any representation by the Vendor or Agents.
** Lease prior to January 2024 with a min 2 year lease term
• Total building area | 131m2*
• Comprising ground floor area | 110m2*
• First floor area | 21m2*
• High ceilings and open plan layout
• One (1) car space on rear
• Suitable for many uses (STCA)
Ryan Amler | 0401 971 622
George Kelepouris | 0425 798 677
*All areas and figures approx only. All boundaries are indicative only. All precaution has been taken to establish the accuracy of all information but does not constitute any representation by the Vendor or Agents.
** Lease prior to January 2024 with a min 2 year lease term
All information about the property has been provided to Ray White by third parties. Ray White has not verified the information and does not warrant its accuracy or completeness. Parties should make and rely on their own enquiries in relation to the property.
Due diligence checklist for home and residential property buyers.