Property main details

Commercial

  • Sold
  • Retail

Specifications

  • Property Type
    Retail
  • Building
    90 m2

Premium Freehold Investment + Upside

Ray White Commercial proudly presents this unique opportunity to secure a tightly held retail investment in the renowned Jackson Court precinct. With a new five (5) year lease in place, further development potential to encompass this underutilized site will guarantee future growth on your investment, taking advantage of the shortage of retail properties in the shire of Manningham. Located in a Commercial 1 zone with no height restraints will enable the future developer the opportunity to capitalize on this multiple-use site (STCA).

Key features
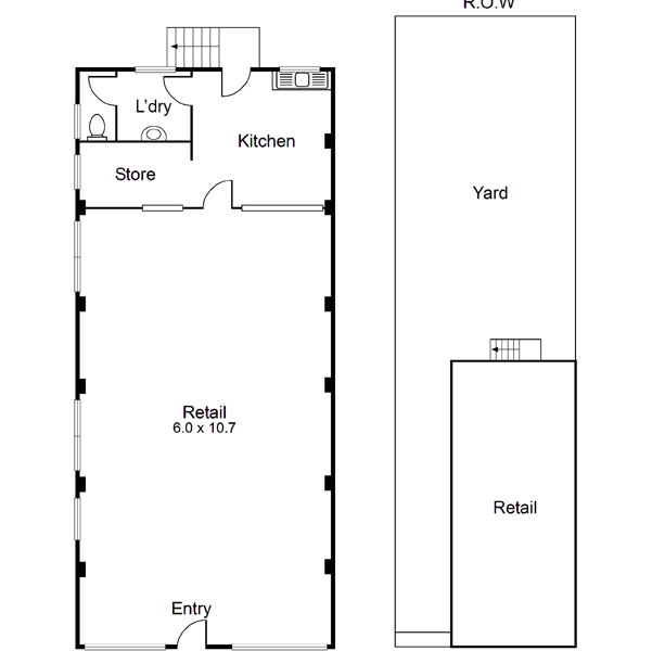
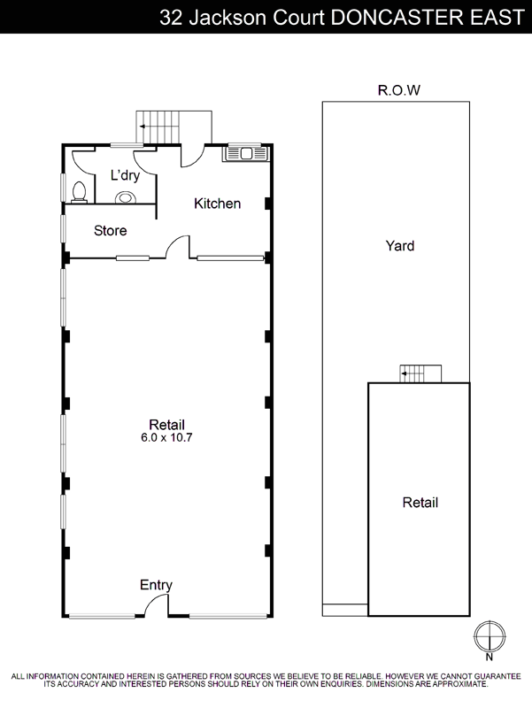
• Land Area | 274m² approximately
• Building Area | 90 m² approximately
• Rental | $25,000 pa net
• Lease | Five (5) Years
• Options | Five (5) Years + Five (5) Years
• Zoning | Commercial 1

All information about the property has been provided to Ray White by third parties. Ray White has not verified the information and does not warrant its accuracy or completeness. Parties should make and rely on their own enquiries in relation to the property.

Due diligence checklist for home and residential property buyers.

Get in touch

We'd love to hear from you

If you're interested in looking at properties around the area, or want the latest information on the market in your neighbourhood, we'd love to hear from you. 

32 Jackson Court Doncaster East 3109, Victoria
Back to top