Property main details

Commercial

  • Leased
  • Industrial/Warehouse

Specifications

  • Property Type
    Industrial/Warehouse
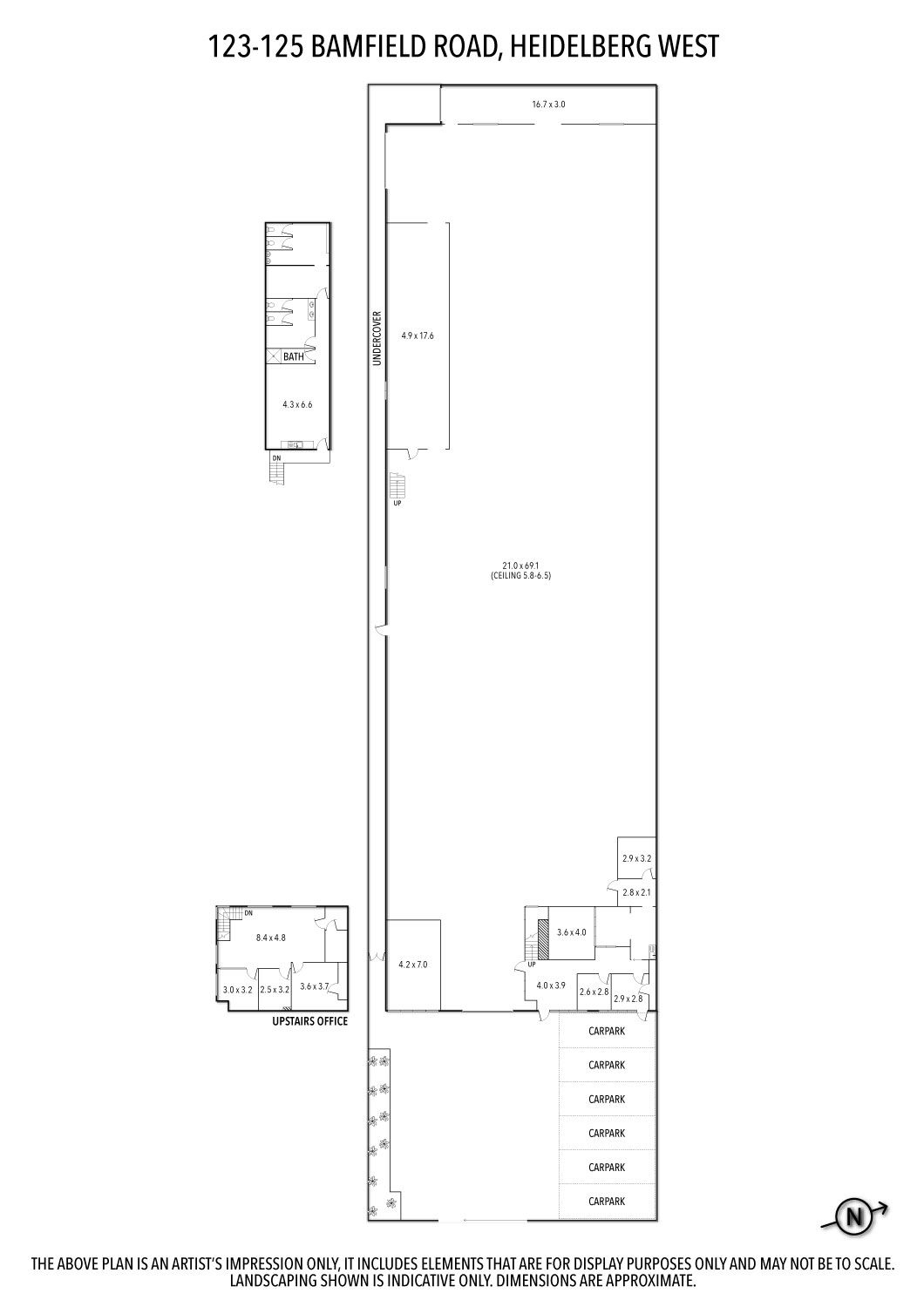
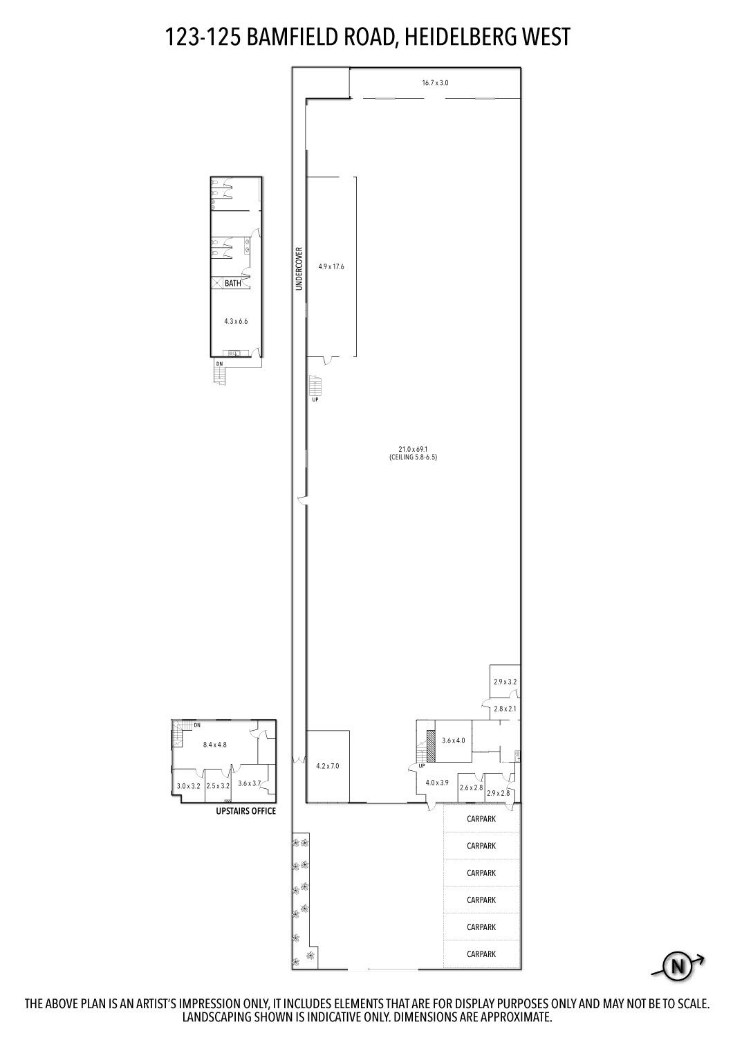
  • Building
    1550 m2

High Clearance, Clear Span Freehold

This large single freehold street front premises will provide any new or established business room to expand their business in a tightly held industrial precinct.
With ample onsite car parking for staff and customers, a gate for added security, and flexible lease terms on offer, this property is sure to meet all requirements for a successful venture.

• Building area | 1,550sqm*
• Land area | 2,200sqm*
• 2 Level office amenities
• High clearance central roller door
• Rear undercover hardstand and side access
• 3 phase power
• Zoning | Industrial 1
• Onsite Secure Car parking

*approx.

All information about the property has been provided to Ray White by third parties. Ray White has not verified the information and does not warrant its accuracy or completeness. Parties should make and rely on their own enquiries in relation to the property.

Due diligence checklist for home and residential property buyers.

Get in touch

We'd love to hear from you

If you're interested in looking at properties around the area, or want the latest information on the market in your neighbourhood, we'd love to hear from you. 

123-125 Bamfield Road Heidelberg West 3081, Victoria
Back to top