Property main details

3

Commercial

  • Leased
  • Industrial/Warehouse

Specifications

  • Property Type
    Industrial/Warehouse
  • Building
    282 m2

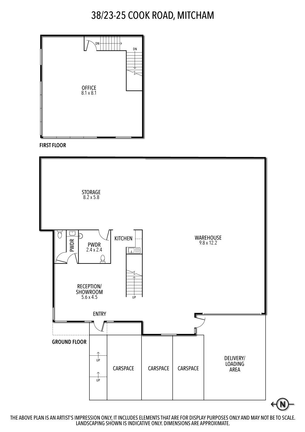
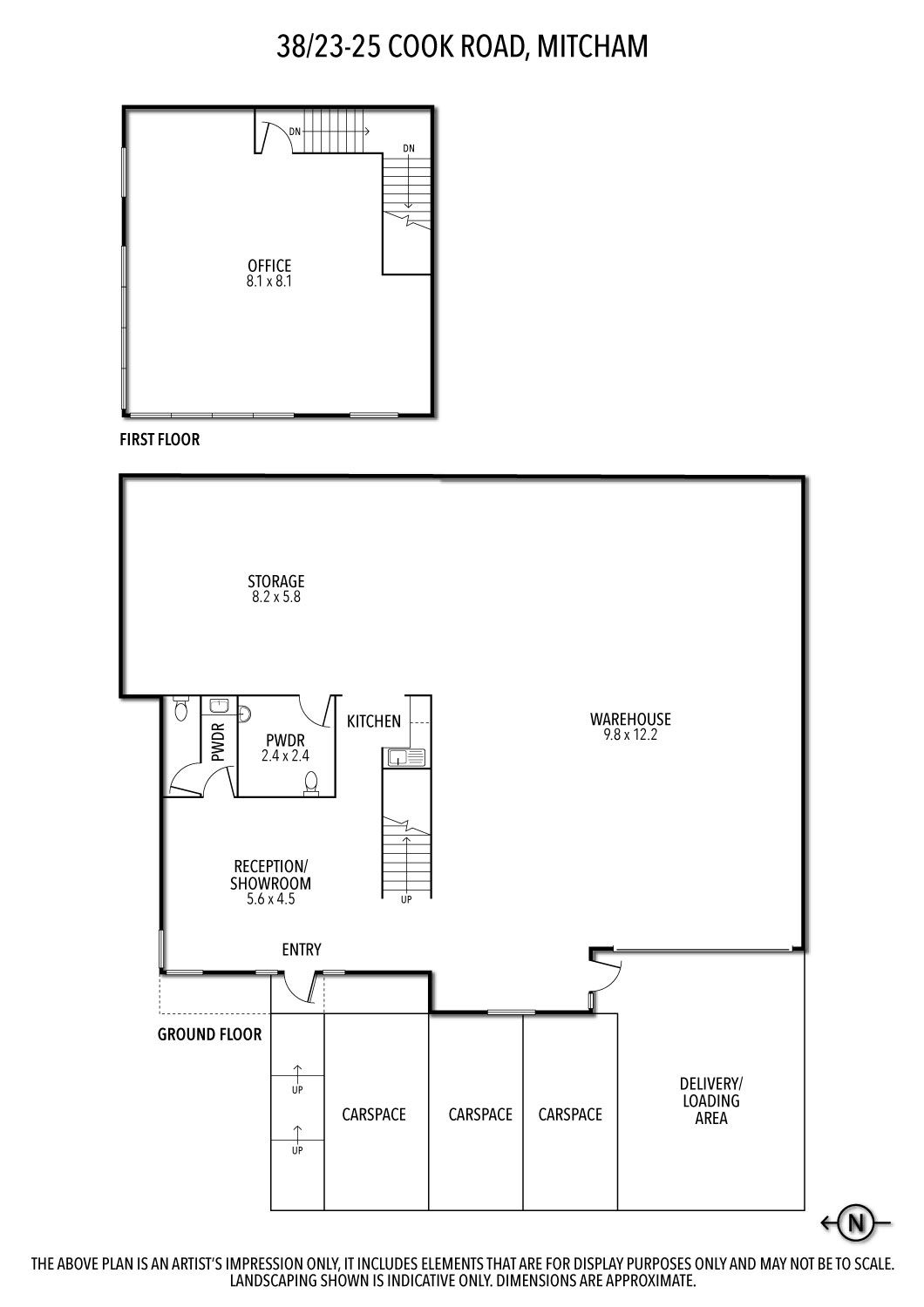
Cutting Edge Cook Road Offering

This professional set up presents an outstanding opportunity to occupy a corner positioned premises in a highly regarded and well kept complex. Situated amidst a range of thriving businesses and enjoying close proximity to EastLink, Maroondah Highway, and all major arterial roads, this light, high class offering is one you simply must inspect.

• Building area | 282m2 approximately
• Office & reception areas
• Kitchenette & toilet amenities
• Car parks | 3 onsite

All information about the property has been provided to Ray White by third parties. Ray White has not verified the information and does not warrant its accuracy or completeness. Parties should make and rely on their own enquiries in relation to the property.

Due diligence checklist for home and residential property buyers.

Get in touch

We'd love to hear from you

If you're interested in looking at properties around the area, or want the latest information on the market in your neighbourhood, we'd love to hear from you. 

38/23-25 Cook Road Mitcham 3132, Victoria
Back to top