WAREHOUSE WITH OFFICE/SHOWROOM - PRICE REDUCED
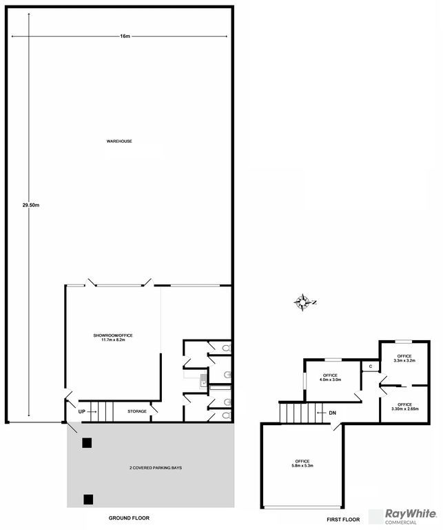
- Total building area | 540m2*
- Includes office/showroom area over two levels | 165m2*
- Ground floor office/showroom with heating/cooling | 95m2*
- 1st Floor consisting of 4 x partitioned offices | 70m2*
- M/F toilets, kitchenette.
- Container height motorised roller door.
- Excellent truck access.
- 4 allocated car spaces.
- Industrial 1 Zone (IN1Z).
- NO GST "Landlord is not registered"
- Landlord offering incentives to approved applicant.
For more information, please contact the exclusive leasing agents below:
For Lease | $42,000 per annum + Outgoings
George Kelepouris | 0425 798 677
Ryan Amler | 0401 971 622
*All areas and figures approx only. All boundaries are indicative only. All precaution has been taken to establish the accuracy of all information but does not constitute any representation by the Vendor or Agents.
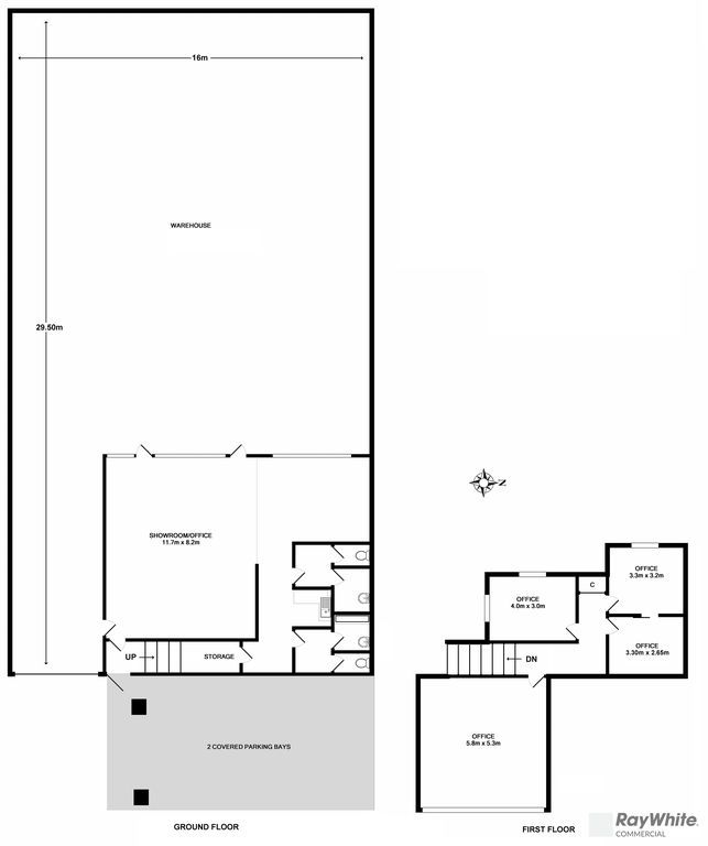
- Includes office/showroom area over two levels | 165m2*
- Ground floor office/showroom with heating/cooling | 95m2*
- 1st Floor consisting of 4 x partitioned offices | 70m2*
- M/F toilets, kitchenette.
- Container height motorised roller door.
- Excellent truck access.
- 4 allocated car spaces.
- Industrial 1 Zone (IN1Z).
- NO GST "Landlord is not registered"
- Landlord offering incentives to approved applicant.
For more information, please contact the exclusive leasing agents below:
For Lease | $42,000 per annum + Outgoings
George Kelepouris | 0425 798 677
Ryan Amler | 0401 971 622
*All areas and figures approx only. All boundaries are indicative only. All precaution has been taken to establish the accuracy of all information but does not constitute any representation by the Vendor or Agents.
All information about the property has been provided to Ray White by third parties. Ray White has not verified the information and does not warrant its accuracy or completeness. Parties should make and rely on their own enquiries in relation to the property.
Due diligence checklist for home and residential property buyers.