Central Office & Warehouse
This property is a rare chance to secure a mix of office and warehouse space so close to Melbourne CBD.
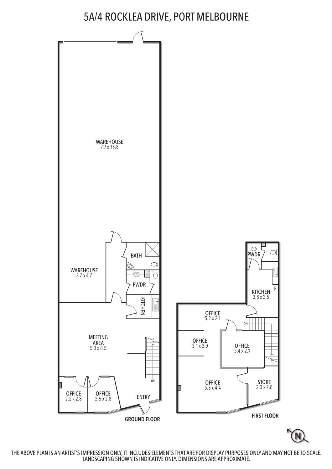
The office areas are split over ground and first floors, with a quality fit out including some glass partitions to separate meeting and office spaces.
Bathroom amenities are located on each level of the office areas, with a kitchenette on the ground floor.
Ground floor office totals approximately 86sqm, and the first floor office totals approximately 78sqm.
Large warehouse area of approximately 142sqm, with plenty of clearance and container height roller door that leads out to 5 onsite car spaces.
Centrally located with easy access onto all major arterials and zoned Capital City 1 under the Port Phillip planning scheme, this property is ready for a wide range of uses (STCA).
• Building area | 306sqm*
• Zoning | Capital City 1
• Car parks | 5 onsite
• Partitioned offices on both levels
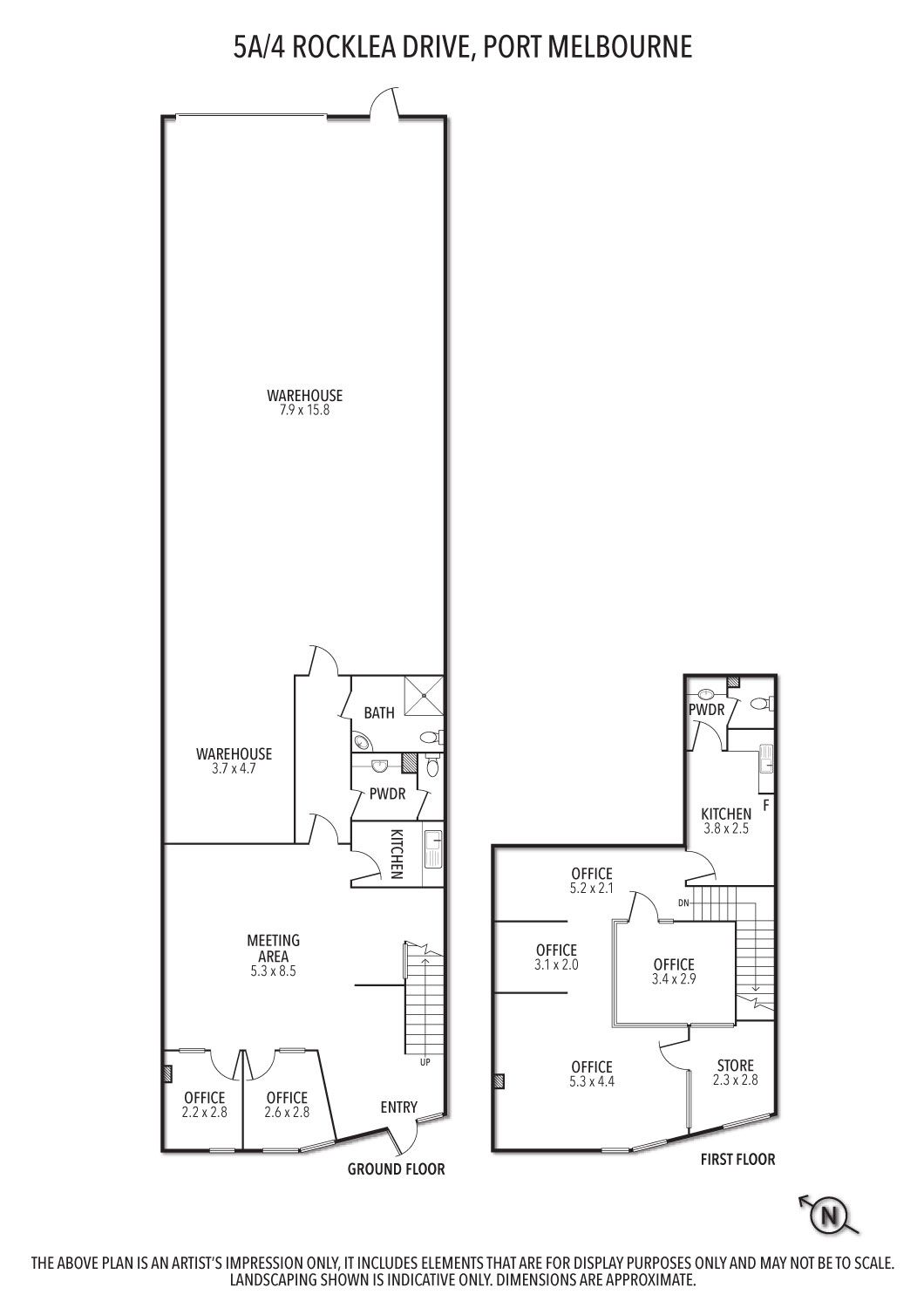
The office areas are split over ground and first floors, with a quality fit out including some glass partitions to separate meeting and office spaces.
Bathroom amenities are located on each level of the office areas, with a kitchenette on the ground floor.
Ground floor office totals approximately 86sqm, and the first floor office totals approximately 78sqm.
Large warehouse area of approximately 142sqm, with plenty of clearance and container height roller door that leads out to 5 onsite car spaces.
Centrally located with easy access onto all major arterials and zoned Capital City 1 under the Port Phillip planning scheme, this property is ready for a wide range of uses (STCA).
• Building area | 306sqm*
• Zoning | Capital City 1
• Car parks | 5 onsite
• Partitioned offices on both levels
All information about the property has been provided to Ray White by third parties. Ray White has not verified the information and does not warrant its accuracy or completeness. Parties should make and rely on their own enquiries in relation to the property.
Due diligence checklist for home and residential property buyers.